Saltar al contenido
Jesús Mª Alonso Fernández Arquitecto
Jesús Mª Alonso Fernández Arquitecto
Jesús Mª Alonso Fernández Arquitecto
  • Inicio
  • Biografía
  • Trabajos
  • Contacto
Buscar:
Instagram page opens in new window
  • Inicio
  • Biografía
  • Trabajos
  • Contacto

CHIMENEA

COCINA

DORMITORIO

ENTRADA

esbozos web

ESTUDIO

PASILLO

1

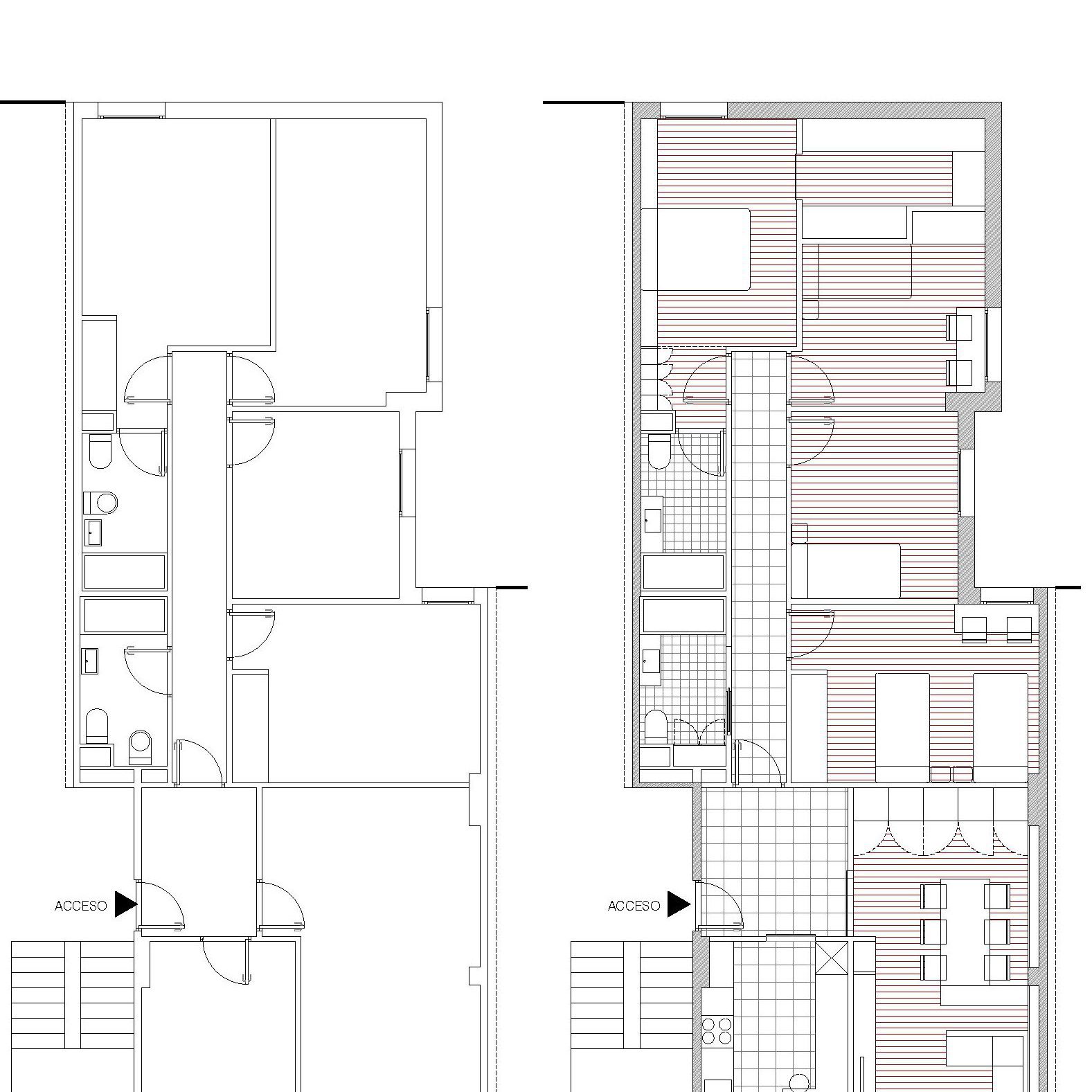
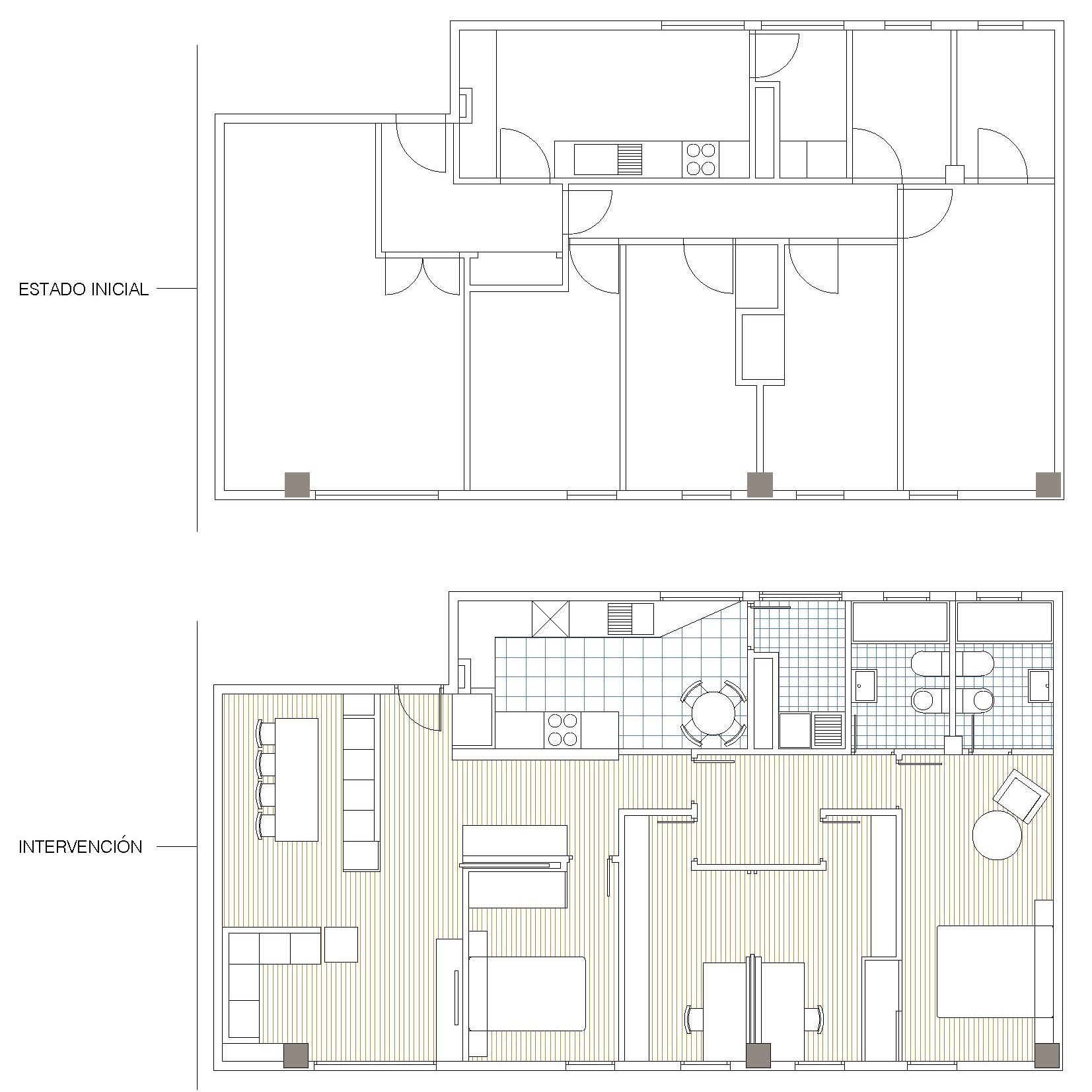
REFORMA DE VIVIENDA / CALLE WENCESLAO FERNANDEZ FLOREZ / A CORUÑA / 2021

Reforma interior de vivienda situada en la 10ª planta de edificio de vivienda colectiva.

Compartir
Share on FacebookShare on Facebook TweetShare on Twitter Share on WhatsAppShare on WhatsApp Share on LinkedInShare on LinkedIn TweetShare on Pinterest

Navegación entre proyectos

AnteriorProyecto anteriorOficinas García Salgado AsesoresSiguienteProyecto siguienteVivienda Plaza María Auxiliadora
Todos los proyectos

Proyectos relacionados

LupaDetalles

Reforma vivienda Rúa Lisboa

Reforma
LupaDetalles

Reforma Rúa de Hórreo

Reforma
LupaDetalles

Calle Montero Ríos

Reforma
LupaDetalles

Reforma Portal Frei Rosendo Salvado 24

Reforma
LupaDetalles

Reforma Cocina Económica Santiago

Reforma
LupaDetalles

Piso Calle Mister Archer Milton Huntington

Reforma
LupaDetalles

Vivienda Plaza María Auxiliadora

Reforma
LupaDetalles

Piso Calle Magistrado Manuel Artime

Reforma
Financiado por la Unión Europea Fondos NextGenerationEU
Plan de Recuperación, Transformación y Resilencia
Jesús Mª Alonso Fernández Arquitecto
  • Contacto
  • Privacidad y cookies
Footer

© 2024 Todos los derechos reservados.

Ir a Tienda
Gestionar el consentimiento de las cookies
Para ofrecer las mejores experiencias, utilizamos tecnologías como las cookies para almacenar y/o acceder a la información del dispositivo. El consentimiento de estas tecnologías nos permitirá procesar datos como el comportamiento de navegación o las identificaciones únicas en este sitio. No consentir o retirar el consentimiento, puede afectar negativamente a ciertas características y funciones.
Funcional Siempre activo
El almacenamiento o acceso técnico es estrictamente necesario para el propósito legítimo de permitir el uso de un servicio específico explícitamente solicitado por el abonado o usuario, o con el único propósito de llevar a cabo la transmisión de una comunicación a través de una red de comunicaciones electrónicas.
Preferencias
El almacenamiento o acceso técnico es necesario para la finalidad legítima de almacenar preferencias no solicitadas por el abonado o usuario.
Estadísticas
El almacenamiento o acceso técnico que es utilizado exclusivamente con fines estadísticos. El almacenamiento o acceso técnico que se utiliza exclusivamente con fines estadísticos anónimos. Sin un requerimiento, el cumplimiento voluntario por parte de tu Proveedor de servicios de Internet, o los registros adicionales de un tercero, la información almacenada o recuperada sólo para este propósito no se puede utilizar para identificarte.
Marketing
El almacenamiento o acceso técnico es necesario para crear perfiles de usuario para enviar publicidad, o para rastrear al usuario en una web o en varias web con fines de marketing similares.
Administrar opciones Gestionar los servicios Gestionar proveedores Leer más sobre estos propósitos
Ver preferencias
{title} {title} {title}